Quraşdırmadan əvvəl hazırlamalı olduğunuz elementlərin siyahısı:
Tornavida: vintləri möhkəm sıxmaq üçün istifadə olunur.
Ölçmə lenti: Mötərizənin düzgün vəziyyətdə olmasını təmin etmək üçün istifadə olunur.
Səviyyə: Mötərizənin üfüqi şəkildə quraşdırıldığını təsdiqləmək üçün istifadə olunur.
Əvvəlcədən yığılmış Tripod Dəstəyi, Dəmiryol və Dəmiryol Birləşməsi 、Orta sıxacVə Uç Qısqac, Dəmir Yolu Qısqacı, Torpaqlama Klipi vəTorpaqlama qapağı、Ballast qabı、M8*60 altıbucaqlı boltlar və M8 flanş qozu. Qeyd etmək lazımdır ki, sement bloklarını özünüz təmin etməlisiniz.



Əvvəlcədən yığılmış mötərizəni açın və ştativ mötərizəni bərkitmək üçün aşağıdakı diaqramda qeyd olunan A, B və C nöqtələrində M8*60 altıbucaqlı boltlar və M8 flanş qaykalarını quraşdırın.
Çizimlərə görə, Günəş Yastı Dam Montaj Sistemində əvvəlcədən yığılmış ştativ dayaqları 2500 mm intervalla yerləşdirilib.
Balast qabını növbə ilə əvvəlcədən yığılmış ştativ dəstəyinə yerləşdirin və şəkildə göstərildiyi kimi iki ballast qabı arasındakı məsafə təxminən 1275 mm-dir.
Beton bloku balast qabına qoyun. Qeyd etmək lazımdır ki, əvvəlcədən yığılmış bir ştativ dəstəyi dörd beton blokla dəstəklənməlidir və hər bir beton blok ən azı 60 kq ağırlığında olmalıdır. Beton Düz Dam Balast Günəş Montaj Sistemində sement bloklarının ölçüləri və yerləşdirilməsi aşağıdakı şəkildə göstərilmişdir.
Aşağıda yuxarıda göstərilən quraşdırma addımları tamamlandıqdan sonra əvvəlcədən yığılmış ştativ dəstəyinin, ballast qabının və beton blokun yuxarıdan görünüşü verilmişdir.
Dəmir yolu keçidindən istifadə edərək relsləri birləşdirin və rels sıxaclarını şəkildə göstərildiyi kimi əvvəlcədən yığılmış ştativ mötərizəsinə bərkidin.
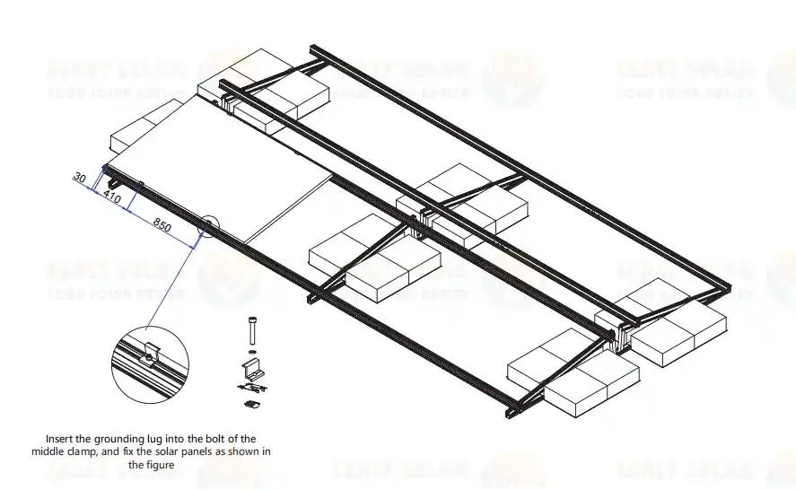
Günəş panelini dəmir yoluna yerləşdirin və şəkildə göstərildiyi kimi, torpaqlama klipini orta sıxacın boltuna daxil edin.
Günəş panellərini ardıcıllıqla yerləşdirin və sonra şəkildə göstərildiyi kimi onları bərkitmək üçün orta sıxac və son sıxacını quraşdırın. Bu, bütün Şərq-Qərb Günəş Balastlı Montaj Sisteminin quraşdırılmasını tamamlayır.



